120 Parkdale Avenue N Hamilton, Ontario L8H 5W9

3 Bedroom 6 Bathroom 4,902 ft2
Central Air Conditioning Forced Air

$1,285,000

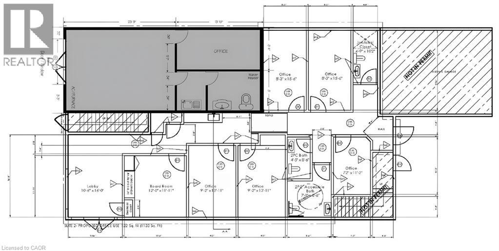
4900 square feet on 2 floors, C5 Zoning Community Shopping and Residential. Great high traffic location. High quality- Solid CONCRETE block walls and CONCRETE core slab ceiling. Presently used as two commercial units on main floor plus two residential apartments on 2nd floor, plus double car garage. Parking for ten plus cars. Excellent high visibility location on busy street. Tenants pay all utilities. 4 electric meters, 4 gas meters, 4 water meters, 4 furnaces, 4 Air conditioners, 4 hot water tanks. Multiple entrances. HOW CAN YOU MAKE MONEY WITH THIS BUILDING?? (id:60342)

Property Details

MLS® Number 40752132
Property Type Multi-family
Neigbourhood Normanhurst
Amenities Near By Hospital, Park, Place Of Worship, Public Transit, Schools
Community Features High Traffic Area, Community Centre
Features Paved Driveway
Parking Space Total 12

Building

Bathroom Total 6
Bedrooms Total 3
Basement Type None
Constructed Date 1990
Construction Material Concrete Block, Concrete Walls
Cooling Type Central Air Conditioning
Exterior Finish Brick, Concrete, Vinyl Siding
Foundation Type Poured Concrete
Heating Fuel Natural Gas
Heating Type Forced Air
Stories Total 2
Size Interior 4,902 Ft2
Type Fourplex
Utility Water Municipal Water

Parking

Attached Garage
Visitor Parking
Open

Land

Access Type Road Access, Highway Access
Acreage No
Land Amenities Hospital, Park, Place Of Worship, Public Transit, Schools
Sewer Municipal Sewage System
Size Depth 90 Ft
Size Frontage 70 Ft
Size Total Text Under 1/2 Acre
Zoning Description C5

https://www.realtor.ca/real-estate/28625986/120-parkdale-avenue-n-hamilton

Contact Us

Contact us for more information

Generating Captcha

Mark Thomas Woehrle
Broker

(905) 512-1846
www.youtube.com/embed/WgIL_SYl4zo
www.markwoehrle.com/

RE/MAX Escarpment Realty Inc.
325 Winterberry Dr Unit 4b
Stoney Creek, Ontario L8J 0B6

(905) 573-1188
(905) 573-1189
www.remaxescarpment.com/